服務熱線:15195518515在線客服:1464856260
傳真號碼:0517-86801009
郵箱號碼:1464856260@qq.com
網 址:http://www.mesiontime.com
地 址:江蘇省金湖縣理士大道61號
渦街流量計的構造原理
渦街流量計是一種常用的流量測量儀表,它能夠對各種流體介質的流量進行測量,廣泛應用于石油、化工、冶金、水處理等行業。渦街流量計的工作原理是基于渦街效應的,它利用介質流動時的渦街運動來進行流量測量。本文將深入介紹渦街流量計的內部構造和工作原理,以便更好地理解它的工作原理。
一、工作原理
在流體中設置旋渦發生體(阻流體),從旋渦發生體兩側交替地產生有規則的旋渦,這種旋渦稱為卡曼渦街,如圖1所示。旋渦列在旋渦發生體下游非對稱地排列。設旋渦的發生頻率為f,被測介質來流的平均速度為U,旋渦發生體迎面寬度為d,表體通徑為D,根據卡曼渦街原理,有如下關系式
f=SrU1/d=SrU/md (1)式中
U1--旋渦發生體兩側平均流速,m/s;
Sr--斯特勞哈爾數;
m--旋渦發生體兩側弓形面積與管道橫截面面積之比

圖1 卡曼渦街
管道內體積流量qv為
qv=πD2U/4=πD2mdf/4Sr (2)
K=f/qv=[πD2md/4Sr]-1 (3)
式中K--流量計的儀表系數,脈沖數/m3(P/m3)。
K除與旋渦發生體、管道的幾何尺寸有關外,還與斯特勞哈爾數有關。斯特勞哈爾數為無量綱參數,它與旋渦發生體形狀及雷諾數有關,圖2所示為圓柱狀旋渦發生體的斯特勞哈爾數與管道雷諾數的關系圖。由圖可見,在ReD=2×104~7×106范圍內,Sr可視為常數,這是儀表正常工作范圍。當測量氣體流量時,VSF的流量計算式為

圖2 斯特勞哈爾數與雷諾數關系曲線
式中 qVn,qV--分別為標準狀態下(0oC或20oC,101.325kPa)和工況下的體積流量,m3/h;
Pn,P--分別為標準狀態下和工況下的絕對壓力,Pa;
Tn,T--分別為標準狀態下和工況下的熱力學溫度,K;
Zn,Z--分別為標準狀態下和工況下氣體壓縮系數。
由上式可見,VSF輸出的脈沖頻率信號不受流體物性和組分變化的影響,即儀表系數在一定雷諾數范圍內僅與旋渦發生體及管道的形狀尺寸等有關。但是作為流量計在物料平衡及能源計量中需檢測質量流量,這時流量計的輸出信號應同時監測體積流量和流體密度,流體物性和組分對流量計量還是有直接影響的。
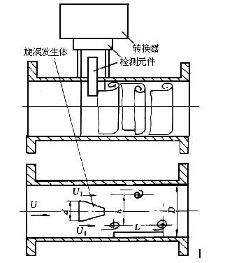
二、結構
VSF由傳感器和轉換器兩部分組成,如圖3所示。傳感器包括旋渦發生體(阻流體)、檢測元件、儀表表體等;轉換器包括前置放大器、濾波整形電路、D/A轉換電路、輸出接口電路、端子、支架和防護罩等。近年來智能式流量計還把微處理器、顯示通訊及其他功能模塊亦裝在轉換器內。

圖3 渦街流量計
(1)旋渦發生體
旋渦發生體是檢測器的主要部件,它與儀表的流量特性(儀表系數、線性度、范圍度等)和阻力特性(壓力損失)密切相關,對它的要求如下。
1)能控制旋渦在旋渦發生體軸線方向上同步分離;
2)在較寬的雷諾數范圍內,有穩定的旋渦分離點,保持恒定的斯特勞哈爾數;
3) 能產生強烈的渦街,信號的信噪比高;
4) 形狀和結構簡單,便于加工和幾何參數標準化,以及各種檢測元件的安裝和組合;
5) 材質應滿足流體性質的要求,耐腐蝕,耐磨蝕,耐溫度變化;
6) 固有頻率在渦街信號的頻帶外。
已經開發出形狀繁多的旋渦發生體,它可分為單旋渦發生體和多旋渦發生體兩類,如圖4所示。單旋渦發生體的基本形有圓柱、矩形柱和三角柱,其他形狀皆為這些基本形的變形。三角柱形旋渦發生體是應用*廣泛的一種,如圖5所示。圖中D為儀表口徑。為提高渦街強度和穩定性,可采用多旋渦發生體,不過它的應用并不普遍。

d/D=0.2~0.3;c/D=0.1~0.2;
b/d=1~1.5;θ=15o~65o
⑵ 檢測元件
流量計檢測旋渦信號有5種方式。
1)用設置在旋渦發生體內的檢測元件直接檢測發生體兩側差壓;
2)旋渦發生體上開設導壓孔,在導壓孔中安裝檢測元件檢測發生體兩側差壓;
3)檢測旋渦發生體周圍交變環流;
4)檢測旋渦發生體背面交變差壓;
5) 檢測尾流中旋渦列。
根據這5種檢測方式,采用不同的檢測技術(熱敏、超聲、應力、應變、電容、電磁、光電、光纖等)可以構成不同類型的VSF,如表1所示。
表1 旋渦發生體和檢測方式一覽表

檢測元件把渦街信號轉換成電信號,該信號既微弱又含有不同成分的噪聲,必須進行放大、濾波、整形等處理才能得出與流量成比例的脈沖信號。
⑶ 轉換器
不同檢測方式應配備不同特性的前置放大器,如表2所列。

⑷ 儀表表體
儀表表體可分為夾持型和法蘭型,如圖7所示。
圖7 儀表表體




|